باز طراحي ورودي‌ بوستان‌هاي شهر قزوين براي استفاده معلولين

با توجه به حضور اجتماعي معلولين و آسيب‌مندان و براي بالا بردن سلامت اجتماعي و رشد فرهنگ شهروندي پروژه بازطراحي محورهاي تردد و ورودي‌ بوستان‌ها براي استفاده معلولين تهيه شده و آماده اجراست.

طرح مرکز فرهنگی ، هنری قزوین

طرح پروژه مرکز فرهنگی ، هنری قزوین با ضرورت ايجاد امكانات لازم جهت رشد و پرورش فكري و ذوقي كودكان و نوجوانان به عنوان یک پروژه شاخص شهری در سازمان خدمات طراحی شهرداری قزوین در دست تهیه است.

تهیه طرح اجرایی نمایشگاه های خیابانی مناسبتی - موضوعی

با توجه ظرفیت های بالای شهر قزوین در عرصه های مختلف هنری طرح مکان یابی و تهیه طرح اجرایی نمایشگاه های خیابانی مناسبتی - موضوعی در سطح شهر تهیه گردید.

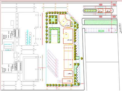
طرح خانه موزه ابوترابي (ره)

با توجه به ضرورت نشان‌دادن ارزش‌های جامعه، تداوم فرهنگ جامعه و کشور، نوع و روش زندگی بزرگان و قرار گرفتن خانه ابوترابی در نقطه‌ی مهمی از بافت تاریخی قزوین ، طرح موزه ابوترابی در دست تهیه است.

طراحی ساختمان سرای محله واقع در شیخ آباد

طرح پروژه مطالعه و طراحی ساختمان سرای محله واقع در شیخ آبادبا ضرورت ارتقاء کیفیت زندگی شهری، یکپارچگی مدیریت شهری، ایجاد هویت در محله ها و مشارکت شهروندان در امور فرهنگی و اجتماعی در دست تهیه است.

طرح مناسب سازي مسير حركتي نابينايان در مركز معلولين توانا

با توجه به ضرورت پاسخگویی به نیازهای تردد نابینایان ، پروژه مناسب سازي مسير حركتي نابينايان در مركز معلولين توانادر سازمان خدمات طراحی شهرداری قزوین در دست تهیه است.

طرح خانه – موزه ي سرلشگر خلبان شهيد عباس بابايي

با توجه به ضرورت انتقال افكار ، احساسات آن شهيد و شناساندن ايشان و آرمان هاي والايش و آثار به جامانده از دوران دفاع مقدس ، پروژه خانه –موزه ي سرلشگر خلبان شهيد عباس بابايي، در دست تهیه است.

مطالعه و باز طراحی ساختمان مرکز ناحیه در مینودر

با توجه به عدم تشخص ساختمان شهرداری ، پروژه باز طراحی ساختمان مرکز ناحیه در مینودر و منظر سازی و طراحی اطراف آن در دست تهیه قرار گرفت .

مطالعه وطراحی ساختمان مرکز ناحیه آزادگان

طرح پروژه مطالعه و طراحی ساختمان مرکز ناحیه آزادگان در بوستان یاس با ضرورت اطلاع رسانی و خدمت رسانی به عموم مردم و تسهیل امور اداری شهروندان در سازمان خدمات طراحی در دست تهیه است.

پروژه طرح ساماندهی خیابان محمدیه

با توجه به مشکلات کدهای ارتفاعی و دفع آبهای سطحی در محلات قدیمی شهر ، پروژه طرح ساماندهی خیابان محمدیه به عنوان یک پروژه کاربردی و ضروری در سازمان خدمات طراحی شهرداری قزوین در حال تهیه است .

طراحی کدهای ارتفاعی کلیه معابر اصلی و فرعی در محدوده منطقه یک

با توجه به نظم بخشیدن نحوه جمع‌آوری و هدایت آبهای سطحی و ساماندهی آن در بافت قدیم طرح کدهای ارتفاعی کلیه معابر اصلی و فرعی در محدوده منطقه یک شهر قزوین در دست تهیه است .

طرح جامع فضاهای مناسبتی شهری

با توجه به اهمیت تزئینات شهری به لحاظ زیبایی، اجتماعی و اقتصادی پروژه طرح جامع فضاهای مناسبتی شهری به عنوان یک پروژه برنامه ریزی - طراحی در سازمان خدمات طراحی شهرداری قزوین به اتمام رسید.

طرح جانمایی و طراحی دو نمازخانه در بوستان ملی باراجین

در راستای اشاعه فرهنگ اقامه نماز و ارائه خدمات بهتر به گردشگران بوستان ملی باراجین طرح جانمایی و طراحی دو نمازخانه در سطح بوستان، در دست تهیه است.

المان میدان شهدای چوبیندر

میدان ورودی ناحیه منفصل شهری چوبیندر، "شهدا" نامگذاری شده و برای طراحی المان و نماد مناسب این میدان، بر روی مفهوم "شهادت" و سمبل های آن، تأکید شده است.

ساماندهی محله مسکونی ضلع غرب رودخانه بازار

با توجه به اهمیت توسعه محلات و ساماندهی بافت های فرسوده پروژه طرح ساماندهی محله مسکونی ضلع غرب رودخانه بازار (حدفاصل خیابان امام خمینی(ره) تا خیابان منتظری) مراحل پایانی خود را طی می کند.

طرح تفصيلي موضعي موضوعي و گذربندي هادي‌آباد

با هدف ساماندهي وضعيت منطقه هادي آباد قزوين، طرح تفصيلي موضعي موضوعي و گذربندي اين منطقه تهيه شد.

طرح مکانيابي و طراحي کريدور-فضاي- خوشنويسي قزوين

با توجه به ايجاد فرهنگ سازي اجتماعي و تلاش براي تغيير هدفدار، طرح پروژه مکان يابي و طراحي کريدور(فضاي) خوشنويسي در دست تهيه است.

مطالعه و طراحي ساختمان اداری کارخانه آسفالت و محوطه اطراف آن

با در نظر گرفتن کلیه ضوابط و متناسب با فضای کارخانه آسفالت طراحي ساختمان اداری کارخانه آسفالت و محوطه اطراف آن در دست تهیه است .

طرح قطعه مشاهیر و هنرمندان

طرحی جهت متمایز کردن محل دفن مشاهیر با قسمتهای دیگر بهشت فاطمه برای شناساندن چهره های نامدار این شهر به نسل های امروز و آینده به پایان رسید .

جمع آوری و هدایت رواناب سطحی معابر فرعی شهرک عظیمیه

در راستای پیاده سازی و اجرا نمودن معابر فرعی وتأسیسات زیربنایی شبکه جمع آوری و هدایت آبهای سطحی ، پروژه آماده سازی و جمع آوری و هدایت رواناب سطحی معابر فرعی شهرک عظیمیه در دست تهیه است.
— 20 نمایش تعداد رکورد ها در صفحه
نمایش 1 - 20 از 54 نتیجه